« Ecole H.Reeves »
Structure en Béton Armé
En developement...
- Mission : Calculs phase DCE
- Taille du projet :
- Client : BET BOST INGENIERIE
- Entreprise(s) :
- Architecte : Guillaume Suply Architecte Infographiste
« Immeuble Grouchy »
Structure en Béton Armé
R+4 sur 2 blocks comprenant un niveau de sous-sol.
- Mission : Calculs complet de ferraillage + plans de coffrage
- Taille du projet : 59 logements
- Client : BET BOST INGENIERIE(69)
- Entreprise(s) : CHAZELLE SA
- Architecte : XXL Atelier
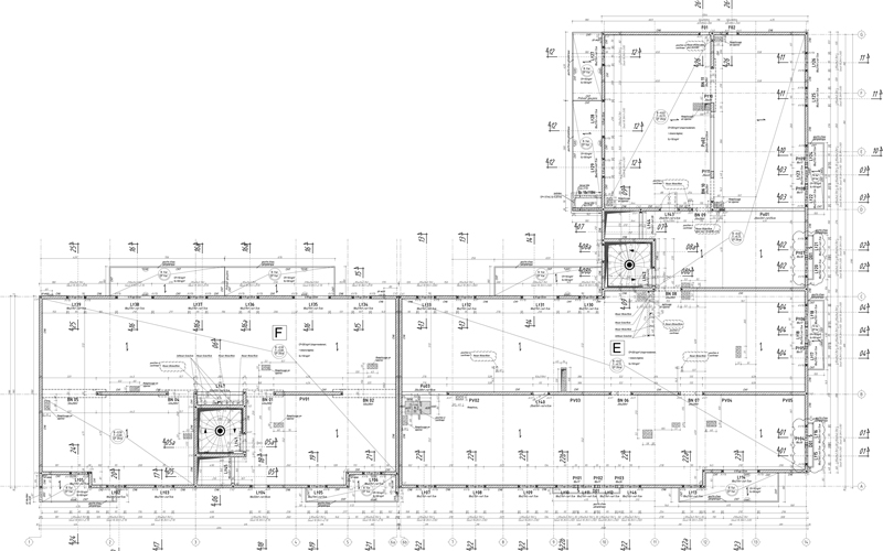
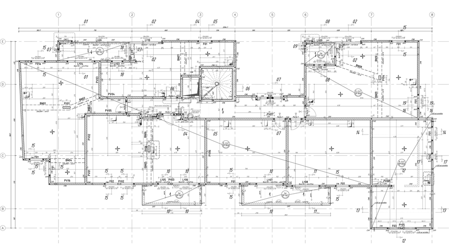
« Foncière Démocratie »
Structure en Béton Armé
Construction de 35 logements en R+4 sur 2 blocks, deux niveaux de sous sol sur un et un niveau de sous sol sur l'autre. Fondation semi-profonde (semelles sur puits en gros béton).
- Mission : Calculs complet de ferraillage + plans de coffrage
- Taille du projet : 35 logements
- Client : CETIS Bâtiment
- Entreprise(s) : FONTANEL
- Architecte : Bruno CURIS
« Fondation de Silo »
Structure en Béton Armé
Semelle de fondation de silo.
- Mission : Calculs complet de ferraillage + plans de coffrage
- Taille du projet :
- Client : MAUBUISSON
- Entreprise(s) : Cabinet Pierre Vidal
- Architecte :
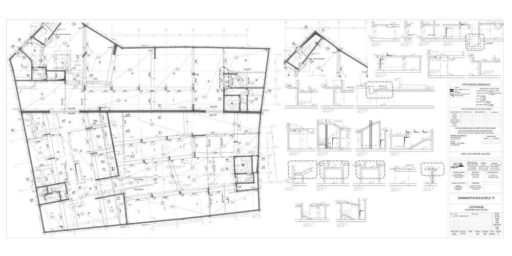
« Dammartin en Goële »
Structure en Béton Armé
Construction de quatre immeubles en R+2 et R+3 sur sous-sol.
- Mission : Calculs complet de ferraillage + plans de coffrage
- Taille du projet : 25 logements
- Client : CETIS Bâtiment
- Entreprise(s) : Dauphin Construction
- Architecte : Quay Architecte
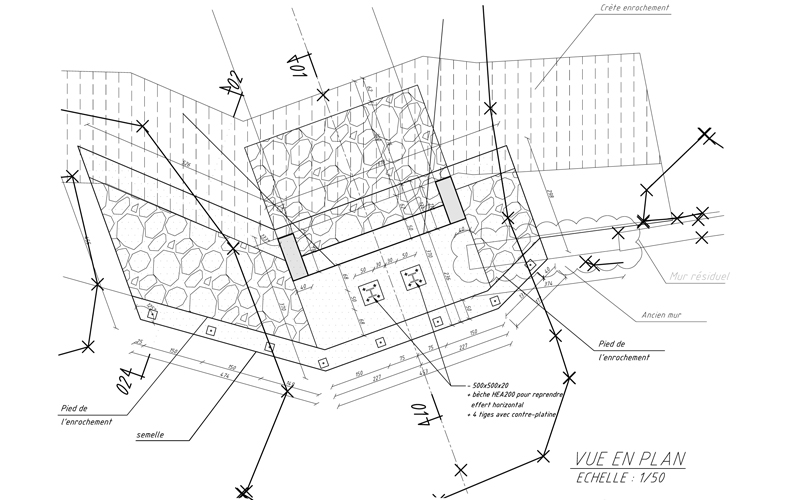
« Ouvrages de bord de falaise »
Structure en Béton Armé
Semelle de Bord de falaise
- Mission : Calculs complet de ferraillage + plans de coffrage
- Taille du projet :
- Client : MAUBUISSON
- Entreprise(s) : Cabinet Pierre Vidal
- Architecte :
« Couleur Soie »
Structure en Béton Armé
R+4 sur un blocs comprenant un niveau de commerces au RdC et un niveau de sous-sol.
- Mission : Calculs complet de ferraillage + plans de coffrage
- Taille du projet : 29 logements
- Client : Didier PIERRON (DPI)
- Entreprise(s) : AJEBAT
- Architecte : AAMCO
« Cité des affaires St Etienne »
Structure
En developement...
- Mission :
- Taille du projet :
- Client :
- Entreprise(s) :
- Architecte :
« VIA REBATEL »
Structure en Béton Armé
R+5 sur un blocs comprenant un niveau de commerces au RdC, 2 niveau de sous-sol et un niveau de l'Attique.
- Mission : Calculs complet de ferraillage + plans de coffrage
- Taille du projet : 33 logements
- Client : RBS
- Entreprise(s) : BROSSE
- Architecte : UNANIME Architect









